Holzwohnhaus BER-105

Holzhaus BER-105
(Isoliert, 44+44 mm), 105 m²

Träumen Sie von Ihrem eigenen gemütlichen Haus in der Natur, in dem Sie sich sofort Zuhause fühlen? Mit unserem Blockhaus BER-105 könnte dieser Traum wahr werden! Ein attraktives Design, eine gemütliche und gut durchdachte Innenaufteilung, eine zuverlässige Nut- und Federkonstruktion und die integrierte Garage zeichnen dieses große Holzhaus aus.

Produktbeschreibung

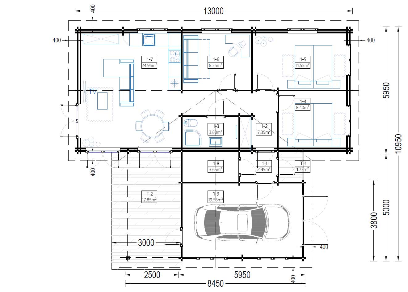
Pläne

Technische Daten

Baubeschreibung

Baubeschreibung

Holzhaus Ausstattung Elektrik
Elektrik

Unser Team übernimmt die komplette Elektroverlegung maßgeschneidert nach Ihren Kundenwünschen. Zusammen mit Ihnen planen wir die Vervollständigung Ihres Traumhauses. Bei einem Neubau sollten Sie auch die intelligente Vernetzung nicht vergessen: Profitieren Sie von Smart-Home-Technologie, um Ihren Wohnkomfort, Ihre Lebensqualität und die Sicherheit im Haus zu steigern.

Baubeschreibung Heizung
Heizungsanlage

Warmwasser
Die Warmwasseraufbereitung erfolgt über einen Durchlauferhitzer und wird in jedes Bad eingebaut.
Heizung
Es wird eine Elektro-Heizung eingebaut. Die Regelung der Heizkreise erfolgt über Raumregler. 

Baubeschreibung Fenster
Fenster

Sämtliche Fenster und Fenstertüren werden in den Abmessungen lt. Zeichnung aus weißen Mehr-Kammer-Kunststoffprofilen mit innen liegenden verzinkten Stahlprofilen und einbruchhemmenden zwei Pilzkopfzapfenverriegelungen hergestellt und eingebaut. Als Glas wird Wärmeschutzglas (UG -Wert nach Wärmebedarfsrechnungeingesetzt. Alle Fensterflügel sind mit einer umlaufenden Gummidichtung versehen.
Festverglasungen werden im Blendrahmen verglast. Andere Ausführungen z. B. Holzfenster, Sprossen, Sicherheitsbeschläge oder –Verglasung sind gegen Mehrpreis möglich.

Baubeschreibung Türen
Türen

Die Haustürenanlage in weiß sind dreifachverglast, ermöglichen Energie- und Heizkosteneinsparung und sind KfW 40 konform. Gegen Aufpreis können diese in anthrazitgrau montiert werden. Die Haustürenanlage ist mit Einbruch hemmender 3-fach-Verriegelung, Stoßgriff und Innendrücker aus Edelstahl und 3 Schlüsseln ausgestattet.

Baubeschreibung Wände
Wände

Die Außenwände werden massiv in Holzblockbauweise der Stärke ab 4,4 cm innen, wie außen mit integrierter Wärmedämmung errichtet. Die aufgestellten Wände werden unter Einbringung von speziellen Dämmungen, Dämmbeton der Stärke von 30 cm verfüllt. Die so entstandene massive Außenwand erfüllt alle Anforderungen an Statik, Wärmedämmung, Schallschutz und Brandschutz.
Lasur oder Farben Beschichtung können gegen einen Aufpreis vorgenommen werden.
Die Innenwände werden massiv in Holzblockbauweise der Stärke 4,4 cm nach statischer Berechnung erstellt.

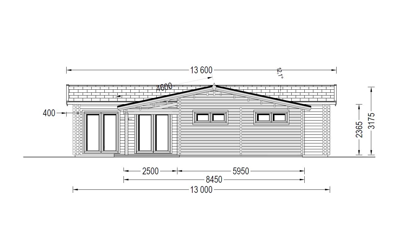
Blechdach
Dach

Der Dachstuhl wird nach den Ausführungszeichnungen und gemäß statischer Berechnung erstellt.
Die Dachüberstände werden traufseitig und giebelseitig lt. Zeichnung mit erstellt. Der Dachaufbau erfolgt durch das Aufbringen einer diffusionsoffenen Unterspannbahn, einer Konter Lattung und einer Dachlattung.
Die Dacheindeckung erfolgt mit Dachblech auf Dachlatten mit entsprechender Belüftung oder alternativ mit Dachschindeln. Die erforderlichen Ortgang-, First- und Durchgangspfannen und Dunsthaube wird nach Norm verlegt.
Alle Dachrinnen einschließlich der notwendigen Fallrohre werde bis Oberkante Erdreich verlegt.-Stahlrinnensystem besteht aus Spezialstahl . Dieses Material ist beidseitig beschichtet und dadurch außergewöhnlich haltbar. Es hat eine hohe Beständigkeit gegen Umwelteinflüsse, wie Korrosion, UV-Strahlen und Kratzer.

Fliesen
Fliesen

Die Fliesen können nach Absprache bei einem für uns tätigen Fliesenfachbetrieb ausgesucht werden. Alle Übergänge von Bade- und Duschwanne zur senkrechten Wand, sämtliche Randfugen zwischen Fliesenfußboden und Wand im Bad und Gäste-WC sowie alle Dehnungsfugen im Fliesenbereich werden dauerelastisch ausgespritzt.
Fußbodenfliesen
In Bad, Gäste-WC, Küche, und Diele (Materialpreis 35,00 EUR je m²) werden jeweils Bodenfliesen ab ca. 15 x 15 cm verlegt und ausgefugt.
Wandfliesen
In den Bädern u. Gäste-WC werden Wandfliesen 200 cm hoch verfliest. Dusch- und Badewannenseiten werden ebenfalls verfliest. Die Verfugung erfolgt in weiß oder grau. Der Materialpreis der Wandfliesen beträgt bis zu 35,00 EUR je m². Die Fliesengröße kann ab 15x15 cm gewählt werden.
Allgemein Fliesenarbeiten
Der Fliesenbereich ist ein besonders sensibler Bereich, der klare Eingrenzungen im beiderseitigen Interesse erfordert. Die Verlegung von großflächigen Mustern, Mosaikfliesen, Bordüren, Sockelfliesen und Metalleckschutzschienen im Wandfliesenbereich oder auch Diagonalverlegung sind Sonderleistungen. Die Verlegung von Steinzeug- u. Cottafliesen, Granit oder sonstiger Fliesen, für die aufgrund der Beschaffenheit ein erhöhter Verlege Aufwand erforderlich ist, sind im Preis nicht enthalten, können aber gerne als Mehrkosten auf Anfrage angeboten werden.

Sanitär
Sanitär

Grundleitungen und Abflussrohre
Die PVC-Abflussrohre werden auf dem kürzesten Wege, mit allen erforderlichen Formstücken, von den Objekten bis zur Außenkante der Außenwand geführt und einmal über das Dach entlüftet.
Wasserleitungen
Die Installation beginnt ab Wasserzähler im Hauswirtschaftsraum, der vom zuständigen Versorgungsträger geliefert und montiert wird (die Kosten hierfür sind vom Bauherrn zu übernehmen). Direkt hinter dem Wasserzähler wird ein Druckminderventil mit Manometer eingebaut, welches das Rohrsystem und die Armaturen vor Überdruck schützen soll. Die davon ausgehenden Wasserleitungen werden in Aluminium-Mehrschichtverbundrohren mit entsprechender Isolierung gemäß der Heizungsanlagen- Verordnung (HeizAnIV) ausgeführt und zu den entsprechenden Zapfstellen geführt. Die Warmwasserleitungen werden vom Wärmeerzeuger zu den Zapfstellen in Küche, Bad u. Gäste-WC in Aluminium-Mehrschichtverbundrohren mit der erforderlichen Wärmedämmung gemäß HeizAnIV installiert. Im Preis enthalten sind ein Anschluss für Waschmaschine und Geschirrspüler sowie im Erdgeschoss eine Außenzapfstelle mit Frostschutzsicherung.
Sanitärobjekte
Bad: Werden vom Bauherrn gestellt und von uns montiert
Wie zum Beispiel
1 Waschtisch (ca. 60 cm)
1 Einhebelmischbatterie,
Spiegel 60
1 Handtuchhalter
1 Emaillierte Stahleinbaubadewanne (rechteckig, 170 cm x 75 cm)
Stahlduschwanne 90 x 90 x 15 cm oder 80 x 80 x 15 cm oder 90 x 75 x 15 cm.
1 Toilettenanlage bestehend aus einem wandhängenden Tiefspül-WC mit Unterputzspülkasten und
Gäste-WC:
1 Porzellanwaschbecken
1 Einhebelmischbatterie
1 Toilettenanlage wie Bad.

Highlights des Modells
• Integriertes Garagengebäude, das direkt mit dem Haupthaus verbunden ist und einen bequemen Zugang zu Ihrem Fahrzeug ermöglicht.
• Eine geräumige, überdachte 17 m² große Terrasse, die Ihnen einen gemütlichen Platz zum Verweilen im Freien bietet.
• Breite, doppelverglaste Eingangs- und Terrassentüren mit stilvollen Querfenstern, ergänzen die traditionelle Architektur.
• 3 kompakte Schlafzimmer, die auch für andere Zwecke genutzt werden könnten, z. B. als Arbeits- oder Hobbyraum.
• Ein herrlicher 25 m² großer Wohnbereich mit offener Küche und Essbereich, in dem Sie es sich mit Ihrer Familie gemütlich machen können.
• Ein Badezimmer für Ihren Wohnkomfort.

Sie wollen gern entspannter leben, ins Grüne ziehen, einen prachtvollen Garten anlegen und die tolle Aussicht von Ihrer gemütlichen Terrasse aus genießen? Dann könnte das Multifunktionshaus BER-105 mit einer natürlicher Holzästhetik und höchster Funktionalität der erste Schritt sein, diesen Traum zu verwirklichen. Investieren Sie in höchsten Wohnkomfort und leben Sie Ihren Traum!

Anrufen

Zögern Sie nicht, uns sofort anzurufen.

Schreiben

Nutzen Sie unser Kontaktformular!

Übersicht weitere Holzhäuser

Images

BER-105

Images

DAR-180

Holzhaus Adal-50

ADAL-50

Images

AGN-75

Images

BER-105

Images

GRE-54

DAS PAPPHAUS - NICHTS AUS PAPPE

innovative Bauberatung

Peter Reinberger
Schloßstr. 48a
12165 Berlin

E-Mail: info@papphaus.berlin
Telefon: +49 (0) 162 882 84 61
intern